For more information regarding the value of a property, please contact us for a free consultation.
896 S Harmony DR Pueblo West, CO 81007
Want to know what your home might be worth? Contact us for a FREE valuation!

Our team is ready to help you sell your home for the highest possible price ASAP
Key Details
Sold Price $370,000
Property Type Multi-Family
Sub Type Duplex
Listing Status Sold
Purchase Type For Sale
MLS Listing ID 8603795
Sold Date 12/31/25
Construction Status New Construction
HOA Y/N No
Year Built 2024
Annual Tax Amount $732
Tax Year 2024
Lot Size 0.280 Acres
Property Sub-Type Duplex
Property Description
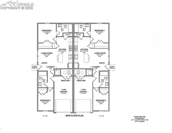
This charming duplex in Pueblo West is split into two identical units, making it an excellent opportunity for investors or families seeking multi-generational living. Each side of the property features a well-designed layout with each having a single car garage, 2 spacious bedrooms and 2 full bathrooms, offering ample living space and comfort. The open-concept floor plan allows for a seamless flow between the living room, dining area, and kitchen, creating a welcoming atmosphere ideal for both relaxation and entertaining.
Each unit comes with its own private entrance, ensuring privacy for the occupants. Large windows throughout the home provide plenty of natural light, while modern finishes and fixtures enhance the overall aesthetic. The bedrooms are generously sized, and the bathrooms are equipped with modern amenities for convenience.
Located in the peaceful Pueblo West area, this duplex is close to schools, parks, shopping centers, and outdoor recreational areas such as the Pueblo Reservoir. The neighborhood offers scenic views, a quiet suburban feel, and easy access to hiking and biking trails. This duplex presents an excellent opportunity for rental income or flexible living arrangements, all in a desirable and growing community.
Location
State CO
County Pueblo
Area Pueblo County
Interior
Cooling Ceiling Fan(s)
Fireplaces Number 1
Fireplaces Type None
Laundry Electric Hook-up
Exterior
Garage Spaces 2.0
Utilities Available Electricity Available
Roof Type Composite Shingle
Building
Foundation Slab
Water Municipal
Structure Type Framed on Lot
Construction Status New Construction
Schools
School District Pueblo-70
Others
Special Listing Condition Builder Owned
Read Less

GET MORE INFORMATION




